TOMBACCIA: a due passi dal CENTRO, VICINO alla nuova PISTA CICLABILE, proponiamo palazzo di quattro piani con 3 ampi appartamenti al secondo piano oltre a soffitte abbinate, un ampio laboratorio al primo piano trasformabile in diversi appartamenti, magazzino al piano terra trasformabile in posti auto coperti. OTTIMO INVESTIMENTO per imprese.
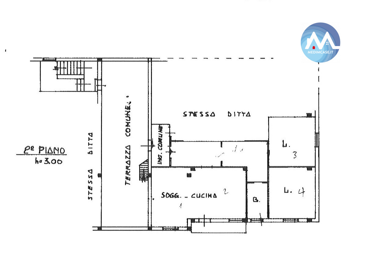
COMPOSIZIONE: Il palazzo oggetto di vendita è composta da 1100 mq commerciali, più precisamente è composta da tre appartamenti al secondo piano per un totale di circa 473 mq accessori compresi; un laboratorio/ufficio attualmente locato al piano primo di circa 357 mq con possibilità di cambio destinazione d'uso da commerciale a residenziale; un laboratorio/magazzino al piano terra di circa 270 mq con possibilità di ricavare garage, cantine e posti auto.
STATO: L'immobile necessita di ristrutturazione sia interna che esterna, benchè sia abitabile allo stato attuale.
APE in fase di definizione.
PREZZO 845.000 euro Rif. 6925
Per maggiori informazioni o per organizzare una visita potete contattarci attraverso il sito web www.Medimcase.it oppure recandovi presso l'agenzia sita in via Porta Rimini 14 a Pesaro o chiamando direttamente al numero: 0721 371560.
Il nostro sito è sempre aggiornato e le migliori offerte sono disponibili in esclusiva solo sul nostro portale www.medimcase.it. I nostri operatori sono disponibili per ogni esigenza
Tutti i dati riportati così come la via dell'immobile sono indicativi e non costituiscono in alcun caso termini contrattuali.
COMPOSIZIONE: Il palazzo oggetto di vendita è composta da 1100 mq commerciali, più precisamente è composta da tre appartamenti al secondo piano per un totale di circa 473 mq accessori compresi; un laboratorio/ufficio attualmente locato al piano primo di circa 357 mq con possibilità di cambio destinazione d'uso da commerciale a residenziale; un laboratorio/magazzino al piano terra di circa 270 mq con possibilità di ricavare garage, cantine e posti auto.
STATO: L'immobile necessita di ristrutturazione sia interna che esterna, benchè sia abitabile allo stato attuale.
APE in fase di definizione.
PREZZO 845.000 euro Rif. 6925
Per maggiori informazioni o per organizzare una visita potete contattarci attraverso il sito web www.Medimcase.it oppure recandovi presso l'agenzia sita in via Porta Rimini 14 a Pesaro o chiamando direttamente al numero: 0721 371560.
Il nostro sito è sempre aggiornato e le migliori offerte sono disponibili in esclusiva solo sul nostro portale www.medimcase.it. I nostri operatori sono disponibili per ogni esigenza
Tutti i dati riportati così come la via dell'immobile sono indicativi e non costituiscono in alcun caso termini contrattuali.
Dettagli
| Riferimento | 6925 |
| Prezzo | 845.000 € |
| Contratto | vendita |
| Tipologia | Palazzo |
| Comune | Pesaro |
| Zona | Tombaccia |
| Mq | 1.100 |
| Anno di costruzione | 1960-65 |









